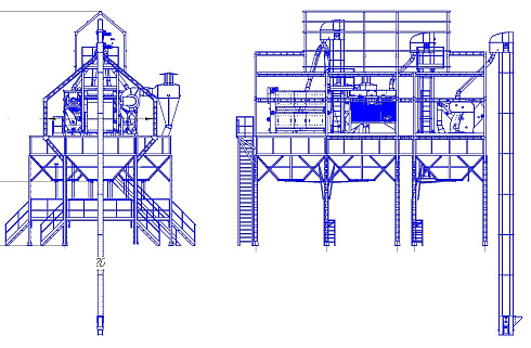
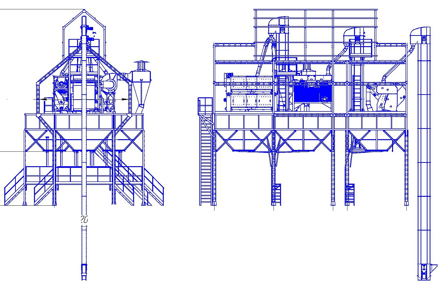
Триерный барабан Т-12 - Предназначены для выделения примесей, отличающихся по длине от зерен основной культуры, из зернового (семенного) материала зерновых колосовых, зернобобовых, масленичных и других культур, прошедшего предварительную, первичную и вторичную (для семян) очистки на воздушно-решетных машинах, с целью доведения по содержанию этих примесей до норм, предусмотренных стандартами на продовольственное зерно и семена. Производительность 12 тонн в час.
Подробнее
Фото
Триерный барабан Т-12 - Предназначены для выделения примесей, отличающихся по длине от зерен основной культуры, из зернового (семенного) материала зерновых колосовых, зернобобовых, масленичных и других культур, прошедшего предварительную, первичную и вторичную (для семян) очистки на воздушно-решетных машинах, с целью доведения по содержанию этих примесей до норм, предусмотренных стандартами на продовольственное зерно и семена. Производительность 12 тонн в час.
